A 268 sq ft detached ADU featuring bold geometric forms, sustainable materials, and efficient open-concept living. Perfect for rental income or multi-generational living.
Visualize the complete structure and spatial relationships.

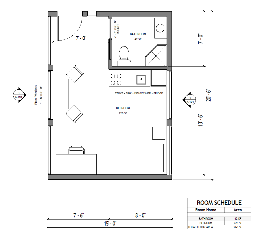
Efficient layout maximizing every square foot with bedroom, full bathroom, and kitchen.

Detailed architectural elevations showing exterior design and proportions.

Front facade featuring clerestory windows for natural light and three large window sections providing views and ventilation.

Side elevation showcasing the dramatic sloped roof design and entry door with window details.
268 SF footprint maximizes efficiency while providing all essential amenities for comfortable living.
Clerestory windows and large glazing bring abundant daylight throughout the interior spaces.
Fully equipped with stove, sink, dishwasher, and refrigerator in an efficient galley layout.
Complete 42 SF bathroom with shower, toilet, and vanity providing all necessary facilities.
Built-in wardrobe and optimized storage solutions throughout the 226 SF bedroom area.
Eco-friendly construction with durable horizontal siding and energy-efficient design.
Get a custom ADU report and consultation for your property. Let's bring this design to life!